Grundfläche: 154,19 m²

Stadthaus / Stadtvilla S-156
Stadthaus mit bis zu 5 Schlafzimmern
Modern und variantenreich – Ihr Haus für’s Leben.
Schon von außen ein Hingucker: der moderne Erker schafft neben einer eigenständigen Architektur zusätzlichen Platz im Innenraum. Durch Grundrissvarianten und unterschiedlich positionierte Hauseingänge passt sich das Haus den Vorgaben Ihres Grundstücks an. Im Innenraum gibt es bis zu fünf Schlaf- oder Kinderzimmer, eine Ankleide sowie einen großzügigen Wohnbereich.
Energiestandard: GEG (Standard), KfW-Effizienzhaus, Passivhaus

Stadthaus / Stadtvilla S-156 Fakten
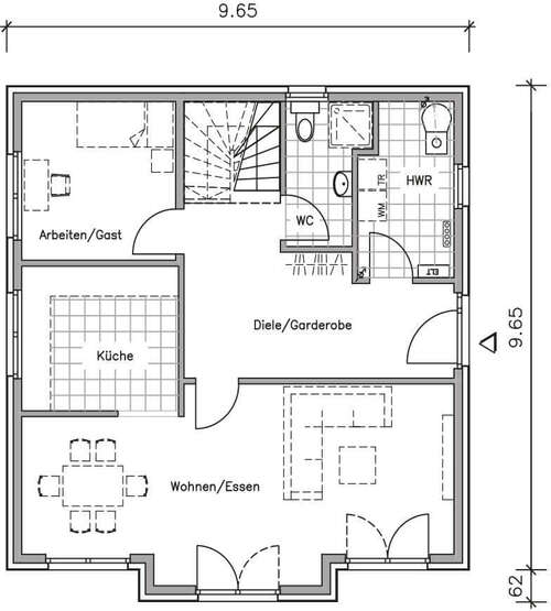
Erdgeschoss: 78,63 m²
Obergeschoss: 75,56 m²
2-geschossig
Anzahl Schlafzimmer: 5
Zelt- / Satteldach 22°
Luft-Wasserwärmepumpe
Fußbodenheizung
Im Festpreis enthalten:
Individuelle 3-D Entwurfsplanung mit Kostenkontrolle
Bauzeit- und Festpreisgarantie
Bau- und Entwässerungsantrag
Statik und Wärmeschutznachweis
Erdarbeiten inkl. Bodenplatte
Baubegleitende Qualitätssicherung mit DEKRA-Prüfbescheinigung
Qualitätskontrolle durch Luftdichtheitsmessung (BlowerDoor Test)
Energieeffizienzklasse A bis A+ (abhängig von Energietechnik)

Highlights
- Grundrissvarianten auch mit seitlichem Hauseingang
- bis zu 5 Schlafzimmer
- offener Wohnbereich
- zusätzlicher Ankleidebereich
- Ausbaureserve Spitzboden
Besonderheiten auf Wunsch
- Kellergeschoss
- Verblendfassade
- Sole-Erdwärmepumpe
- Lüftungsanlage
- Photovoltaikanlage





Grundrisse

NURDA - Stadthaus 156
Eine Grosszügige & geradlinige Stadtvilla mit knapp 160 qm
Die großzügige Stadtvilla S 156. NURDAHAUS baut Ihr Einfamilienhaus mit 5 Schlafzimmern (4 Kinderzimmer) in massiver Bauweise als Stadthaus / Stadtvilla mit knapp 160 m² Grundriss schlüsselfertig in der Region Hannover, Burgwedel, Isernhagen, Burgdorf, in der Wedemark.
Ihr Stadthaus / Stadtvilla vom Bauunternehmen aus der Region Hannover - individuell geplant - schlüsselfertig massiv gebaut.
Weitere Hausvorschläge finden Sie in unseren kostenlosen Hausprospekten.
Sie möchten ein Angebot erhalten
Wir freuen uns auf Ihre Anfrage und darauf, gemeinsam für Sie etwas großartiges zu schaffen.
Jetzt kostenlos ein Hauskatalog bestellen.
Oder rufen Sie an:
Infotelefon:
05139 - 99 66 24
Neue Öffnungszeiten ab 01.01.2026:
Montag bis Donnerstag von 09:00 bis 16:00 Uhr
Freitag von 09:00 bis 13:00 Uhr
oder nach Vereinbarung































