Grundfläche: 173,17 m²

Landhaus LA-172
Landhaus
Großzügiges Wohlfühlhaus.
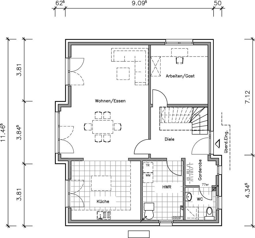
Dank eines offen gestalteten Wohn- und Essbereichs sowie einer Galerie wirken die Räume weit und groß. Vier großzügig gestaltete Schlafräume können individuell genutzt werden. Auf Wunsch kann ein zusätzlicher Raum anstatt des Galeriebereichs als Arbeits- oder Gästezimmer geschaffen werden. Das Hauskonzept ermöglicht zahlreiche Anpassungen des Grundrisses und kann durch eine raumhohe Galerieverglasung ergänzt werden. Die Über-Eckverglasung im Wohnraum sowie geschickt angeordnete Fenster sorgen für eine auffallend schöne Architektur.
Energiestandard: GEG (Standard), KfW-Effizienzhaus, Passivhaus

Landhaus LA-172 Fakten
Erdgeschoss: 90,16 m²
Obergeschoss: 83,01 m²
1-geschossig
Anzahl Schlafzimmer: 4
Luft-Wasserwärmepumpe
Fußbodenheizung
Im Festpreis enthalten:
Individuelle 3-D Entwurfsplanung mit Kostenkontrolle
Bauzeit- und Festpreisgarantie
Bau- und Entwässerungsantrag
Statik und Wärmeschutznachweis
Erdarbeiten inkl. Bodenplatte
Baubegleitende Qualitätssicherung mit DEKRA-Prüfbescheinigung
Qualitätskontrolle durch Luftdichtheitsmessung (BlowerDoor Test)
Energieeffizienzklasse A bis A+ (abhängig von Energietechnik)

Highlights
- offene Galerie
- alt. Arbeitszimmer
- Speisekammer und Abstellraum
- 4 Schlafzimmer
- Über-Eckverglasung
- Ausbaureserve im Spitzboden
Besonderheiten auf Wunsch
- Kellergeschoss
- Verblendfassade
- Sole-Erdwärmepumpe
- Lüftungsanlagen
- Photovoltaikanlagen





Grundrisse

NURDA - Landhaus 172
Platz und Treffpunkt für die ganze Familie
Ihr Hausbau steht bei uns im Mittelpunkt - gerne bauen wir Ihr Einfamilienhaus für ein kleines Baugrundstück in massiver Bauweise als Landhaus schlüsselfertig in der Region Hannover, Burgwedel, Isernhagen, Burgdorf, in der Wedemark, Celle oder Hildesheim.
Ihr Landhaus vom Bauunternehmen aus Hannover - individuell geplant - schlüsselfertig massiv gebaut.
Weitere Hausvorschläge finden Sie in unseren kostenlosen Hausprospekten.
Sie möchten ein Angebot erhalten
Wir freuen uns auf Ihre Anfrage und darauf, gemeinsam für Sie etwas großartiges zu schaffen.
Jetzt kostenlos ein Hauskatalog bestellen.
Oder rufen Sie an:
Infotelefon:
05139 - 99 66 24
Öffnungszeiten:
Montag bis Freitag von 8.00 Uhr bis 17.00 Uhr
oder nach Vereinbarung.








































