1-geschossig

Winkelbungalow 102
Winkelbungalow
Klassiker mit idealer Raumaufteilung.
Dieser Bungalow passt dank der kompakten Maße auch auf kleine Grundstücke und schafft durch seinen zentralen Wohnbereich ein besonderes Wohnerlebnis. Zwei Schlafzimmer bieten älteren Menschen, aber auch Paaren oder Kleinfamilien ausreichend Raum zum Leben. Ergänzt werden kann das Haus durch eine überdachte.
Energiestandard: GEG (Standard), KfW-Effizienzhaus

Winkelbungalow 102 Fakten
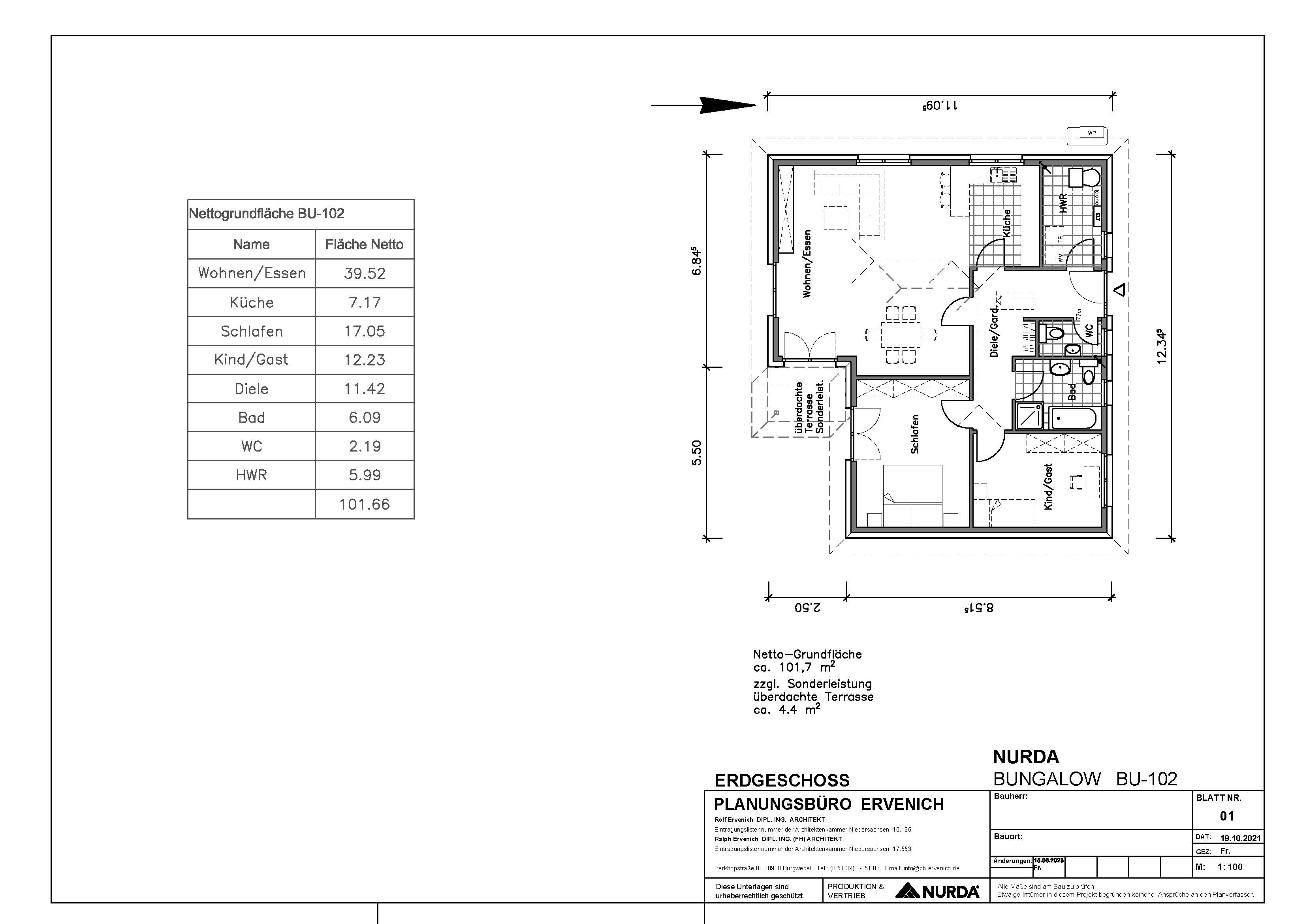
Grundfläche: 101,68 m²
Erdgeschoss: 101,68 m²
Anzahl Schlafzimmer: 2
Walmdach 26°
Luft-Wasserwärmepumpe
Fußbodenheizung
Im Festpreis enthalten:
Individuelle 3-D Entwurfsplanung mit Kostenkontrolle
Bauzeit- und Festpreisgarantie
Bau- und Entwässerungsantrag
Statik und Wärmeschutznachweis
Erdarbeiten inkl. Bodenplatte
Baubegleitende Qualitätssicherung mit DEKRA-Prüfbescheinigung
Qualitätskontrolle durch Luftdichtheitsmessung (BlowerDoor Test)
Energieeffizienzklasse A bis A+ (abhängig von Energietechnik)

Highlights
- offener Wohn- und Essbereich
- offene Wohnküche
- Ausbaureserve Spitzboden
- auf Sonderwunsch überdachte Terrasse
Besonderheiten auf Wunsch
- Kellergeschoss
- Verblendfassade / Teilverblender
- Sole-Erdwärmepumpe
- Lüftungsanlagen
- Photovoltaikanlagen





Grundrisse

NURDA - Bungalow 102
Wohnen auf einer Ebene
Der kleine Bungalow von NURDA mit 100 m² Grundriss. NURDA baut Ihren massiven Bungalow oder Winkelbungalow schlüsselfertig in der Region Hannover, Burgwedel, Isernhagen, Burgdorf, in der Wedemark oder wo immer Sie wollen.
Ihr Bungalow vom Bauunternehmen aus der Region Hannover - individuell geplant - schlüsselfertig massiv gebaut.
Weitere Hausvorschläge finden Sie in unseren kostenlosen Hausprospekten.
Sie möchten ein Angebot erhalten
Wir freuen uns auf Ihre Anfrage und darauf, gemeinsam für Sie etwas großartiges zu schaffen.
Jetzt kostenlos ein Hauskatalog bestellen.
Oder rufen Sie an:
Infotelefon:
05139 - 99 66 24
Neue Öffnungszeiten ab 01.01.2026:
Montag bis Donnerstag von 09:00 bis 16:00 Uhr
Freitag von 09:00 bis 13:00 Uhr
oder nach Vereinbarung

















